by Roz
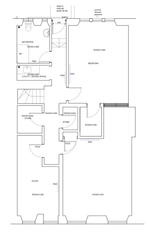
The other room at the front of the property is currently two separate rooms, it's only a stud wall between them, so we plan to remove that ourselves and create the large room you can see on the plans. This is going to B's pool room. By pool room I mean he wants an american pool table, just in case anyone thought the plan was for a swimming pool! Again, who knows when we will have the money to actually buy an american pool table, but again we are lucky enough to have been gifted a table tennis table so we will start off with that. Ping pong tournament anyone?? Obviously there is going to be a built in bar in the pool room otherwise why would anyone want to play pool in there?!
Now this next room is maybe my favourite room in the basement! Well in my head anyway. If you look back up at the plans, can you see the large cupboard next to the staircase? Well folks, that is going to be our wine cellar. I am so excited about this!! At the moment it simply looks like a cupboard and we are using it to store shelving, brackets and random bits and pieces, but in my head it is already a floor to ceiling wine cave. As you know I love my wine and kitting out a wine cellar is a pretty exciting thought for me.
As you can see the basement doesn't have any of the original features that we are lucky enough to have in the rest of the house, there are no fireplaces or nice cornices down here, but there are shutters on the windows at the front of the property. There is a bit more evidence of wear and tear down here as well, the wallpaper was blistered and falling off the wall at the back door.
It was lovely to share the first instalment of our forever house on the blog a few weeks ago, thank you so much for all your lovely comments! I thought it would be fun to take you on a tour of the house and let you know what our plans are for each floor. Whilst they might sound grand please do remember the clue is in the name...this is our forever house and many of the rooms, especially in the basement, are plans for the future. Once we are at the stage where the house has a kitchen and is watertight (the roof actually leaks people!) we will be moving in and completing the work over the next few years when we have the time and the money to do so.
So, to help explain the layout of the house, I thought it would be fun to share a post each week detailing the plans for each of the floors in our townhouse. It made sense to start at the bottom and work my way up, so this week you get the basement. The first picture below is a snapshot of the architect's plans, you can't really read the narrative on them, but I think it helps show the layout of the floor. The back garden is at the top of the drawing below and the front of the townhouse is at the bottom.
So, to help explain the layout of the house, I thought it would be fun to share a post each week detailing the plans for each of the floors in our townhouse. It made sense to start at the bottom and work my way up, so this week you get the basement. The first picture below is a snapshot of the architect's plans, you can't really read the narrative on them, but I think it helps show the layout of the floor. The back garden is at the top of the drawing below and the front of the townhouse is at the bottom.
As you can see there are three large rooms in the basement, along with a big bathroom and utility room at the rear of the property. The large room at the rear of the house is going to be our cinema room! B is taking charge of this and has plans to create a room within a room (for the ultimate in sound proofing and general man cave reasons!) and wants a very large projector screen tv. I really enjoy watching movies, so I'm very happy at the thought of a cinema in our basement.
![]() |
| Future Cinema Room |
The front left room will one day become our gym. It's easily the darkest room in our house as the left window is under the stoop so doesn't let much light in. The plan is to pop some mirrors down one wall and then invest in a decent cardio machine like a cross trainer or a rowing machine. People have already gifted us lots of random gym equipment so we have a reebok step, a trampet, lots of weights and a pilates machine, ace! I feel fitter already just thinking about it. Actually the house in itself is a bit of a work out, DIY efforts aside, my mum counted and there are 91 internal steps in the property from the basement up to the attic!
![]() |
| Future Gym |
The other room at the front of the property is currently two separate rooms, it's only a stud wall between them, so we plan to remove that ourselves and create the large room you can see on the plans. This is going to B's pool room. By pool room I mean he wants an american pool table, just in case anyone thought the plan was for a swimming pool! Again, who knows when we will have the money to actually buy an american pool table, but again we are lucky enough to have been gifted a table tennis table so we will start off with that. Ping pong tournament anyone?? Obviously there is going to be a built in bar in the pool room otherwise why would anyone want to play pool in there?!
![]() |
| Future Pool Room when combined |
Now this next room is maybe my favourite room in the basement! Well in my head anyway. If you look back up at the plans, can you see the large cupboard next to the staircase? Well folks, that is going to be our wine cellar. I am so excited about this!! At the moment it simply looks like a cupboard and we are using it to store shelving, brackets and random bits and pieces, but in my head it is already a floor to ceiling wine cave. As you know I love my wine and kitting out a wine cellar is a pretty exciting thought for me.
The damp in the basement is in part due to this delightful structure in our back garden! Yes that is a five storey fire escape. Thankfully we have planning permission to remove it, but the way it was cut into the sandstone has allowed water to travel into the stone and has resulted in the damp problem. We did know about this issue before we put the offer in on the house and have already spoken to some experts to rectify the problem.
The bathroom and utility area are currently separate male and female toilets, which is great for us as it means all the plumbing is there. All we need to do is take down the stud walls and kit out the rooms with the fixtures we want. As it's going to be a functional bathroom, used for gardening, car washing and hopefully dog washing(!), the plan is to install a big belfast sink and a large walk in shower. There will also be a washing machine for those sunny days when I can hang the washing outside. I actually cannot wait to be able to do this again, in Wokingham used to hang our washing outside all the time, but in the flat for the past 6 years I've not been able to do this and have really missed it. Bedsheets just don't smell as good when they have dried inside!
I guess since we are on a tour of the basement level, I should probably include some pictures of the garden. It's so lovely to have a private garden in the city and whilst ours in not exactly massive, it's easily a manageable size and will be perfect for barbecues and chilling out in. Especially once the fire escape is no more!
I hope you enjoyed the tour of the basement, come back next Tuesday for the Ground Floor :)
Roz xx












6 comments:
This is all so exciting! I know it will take a while to get it all done, but then it will just how you want it and perfection. x
Whoop whoop!
Loving the tour Roz - you are working so hard - you must be so proud of your house and your efforts - so you should be :)
I really want to see it in person - must book a trip up to Glasgie soon!
Enjoying reading about your house Roz, but seriously concerned about the work that needs doing...if your roof is leaking people it must have some really big holes in it! ;)
It's just AMAZING! My poor little mind is boggling - a cinema, a pool room and (at risk of repeating myself) a CELLAR!
I think it's great that you have a clear idea of what you'll ultimately do and what each room is for.
Can't wait for the ground floor!
this is just going to be so incredible when it's finished - can't wait to see it and will enjoy following the progress.x
Thankfifi
thanks so much for your votes for MrK.x
Yes Siobhan it's lovely to be able to plan everything but sometimes the number of decisions that have to be made freak me out a bit!!
Rebecca if you are coming to ODP2 there could be a tour??
Graham your comment made me laugh out loud!!
:)
Post a Comment